売買物件
取手市紫水第3新築戸建 全4棟
【
新築
一戸建て
】・当日はもちろんいつでもご案内可能です!
・オール電化☆防犯カメラ付☆人気の平屋(4号棟)
・コンビニまで徒歩約7分でお買物便利☆
・お気軽にお問い合わせください!
| 価格 | 最寄駅 | 所在地 | 面積 | 築年月 | 間取り |
|---|---|---|---|---|---|
JR常磐線「藤代」駅 バス 14分 紫水高校 | 茨城県取手市紫水1-17-17 | 土地/210.00㎡ 建物/98.01㎡ | 2025年04月 | 3 LDK |
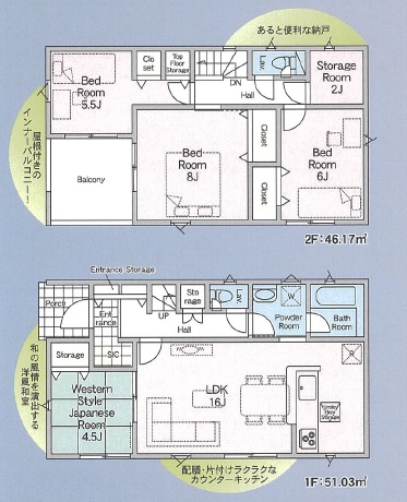
物件写真・間取り
物件概要
| 物件名 | 取手市紫水第3新築戸建 全4棟 |
|---|
| 交通機関 | JR常磐線「藤代」駅 バス 14分 紫水高校 |
|---|
| 所在地 | 茨城県取手市紫水1-17-17 |
|---|
| 間取り | 3 LDK |
|---|
| 土地権利 | 所有権 |
|---|
| 土地面積 | 210.00㎡ |
|---|
| 私道負担面積 | 無し |
|---|
| 建物面積 | 98.01㎡ |
|---|
| 建物構造 | 木造 |
|---|
| 築年月 | 2025年04月 |
|---|
| 都市計画 | 調整区域 |
|---|
| 用途地域 | 無指定 |
|---|
| 建ぺい率 | 60% |
|---|
| 容積率 | 100% |
|---|
| 接道 |
|
|---|
| 地目 | 宅地 |
|---|
| 現況 | 完成済 |
|---|
| 販売戸数 | 2戸 |
|---|
| 引渡し | 即時 2025年4月 |
|---|
| 設備 | 東京電力、公営水道、公共下水 |
|---|
| 備考 | 2号棟: 4LDK 敷地面積210.00㎡、建物97.20㎡ 3号棟: 4LDk敷地面積210.00㎡ 建物98.01㎡ |
|---|
| 取引態様 | 媒介 |
|---|
| 情報登録日 | 2025年01月25日 |
|---|
| 情報更新日 | 2025年06月28日 |
|---|




















取手市内の新築住宅なら、取手市にあるハウスコレクションにおまかせ下さい!!
地域密着型の不動産屋です☆
お気軽にお電話下さい♪
フリーコール0120-28-1073
下記のご相談にも柔軟に対応できます。
(1)住宅ローンが他社では断られた。(年齢、年収、勤続年数などが理由で)
(2)借入れ金額が足らないけど、購入はあきらめられない。
(3)車のローンやカードローンがあり、難しいと言われた。
↑のような、状況でも当社独自のノウハウで住宅ローンを通すことが可能です。
あきらめる前に、ぜひ一度当社までご相談ください。