売買物件
取手市野々井中古戸建(軽量鉄骨造)
【
中古
一戸建て
】・当日はもちろんいつでもご案内可能です!
・新取手駅徒歩約4分の好立地♪
・カーポート付き駐車場☆電動シャッター☆
・お気軽にお問い合わせください!
| 価格 | 最寄駅 | 所在地 | 面積 | 築年月 | 間取り |
|---|---|---|---|---|---|
1960万円 | 関東鉄道常総線「新取手」駅 徒歩 4分 | 茨城県取手市野々井168-1 | 土地/206.18㎡ 建物/129.11㎡ | 1992年08月 | 5~ LDK |
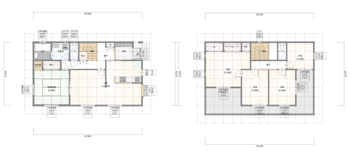
物件写真・間取り
物件概要
| 物件名 | 取手市野々井中古戸建(軽量鉄骨造) |
|---|
| 交通機関 | 関東鉄道常総線「新取手」駅 徒歩 4分 |
|---|
| 所在地 | 茨城県取手市野々井168-1 |
|---|
| 間取り | 5~ LDK |
|---|
| 土地権利 | 所有権 |
|---|
| 土地面積 | 206.18㎡ |
|---|
| 建物面積 | 129.11㎡ |
|---|
| 建物構造 | 軽量鉄骨 |
|---|
| 築年月 | 1992年08月 |
|---|
| 都市計画 | 市街化区域 |
|---|
| 用途地域 | 準住居地域 |
|---|
| 建ぺい率 | 60% |
|---|
| 容積率 | 200% |
|---|
| 接道 |
|
|---|
| 地目 | 宅地 |
|---|
| 現況 | 空 |
|---|
| 引渡し | 即時 |
|---|
| 設備 | 上水道、浄化槽、都市ガス |
|---|
| 取引態様 | 売主 |
|---|
| 情報登録日 | 2025年02月01日 |
|---|
| 情報更新日 | 2025年05月29日 |
|---|


















お気軽にお電話下さい♪
フリーコール0120-28-1073
取手市内の不動産なら、取手市にあるハウスコレクションにおまかせ下さい!!
地域密着型の不動産屋です☆
下記のご相談にも柔軟に対応できます。
(1)住宅ローンが他社では断られた。(年齢、年収、勤続年数などが理由で)
(2)借入れ金額が足らないけど、購入はあきらめられない。
(3)車のローンやカードローンがあり、難しいと言われた。
↑のような、状況でも当社独自のノウハウで住宅ローンを通すことが可能です。
あきらめる前に、ぜひ一度当社までご相談ください。